Groupe électrogène solaire.

Puissance: 6 Kwc  Stockage 5 à 15 Kw

CONCEPTION & REALISATION

Philippe Géraudel.

Multi-entrepreneurs.

ESSEC, Boston Consulting Group.

geraudel@hotmail.com

geraudel.online

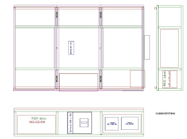
LA REMORQUE LE MODULE DE PRODUCTION ET DE STOCKAGE

LA MATRICE DE STOCKAGE ET DE DÉPLOIEMENT DES PANNEAUX

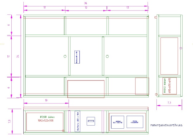
PLAN DE CONSTRUCTION DE LA MATRICE

LE SYSTEME DE COULISSEMENT DANS LA MATRICE PATINS DE FRICTION EN NYLON LE SYSTEME D’ENROULEMENT AUTOMATIQUE DES CABLES LE SYSTEME DE VERROUILLAGE LE SCHEMA DE CABLAGE ELECTRIQUE